您好,欢迎进入xk星空体育直播平台官方网站!

与时俱进,诚赢客户

龙门吊、提梁机、星空体育官方账号生产厂家

服务电话:13782575673

星空体育官方账号

您现在所在位置:首页>>星空游戏官网入口手机版>>PC星空游戏平台>>L型电动葫芦星空体育官方账号

L型电动葫芦星空体育官方账号

本文链接://www.xlhydra.com/msqzj/1359.html   发布时间:2022-01-21 10:53:10  点击量:5538

  L型电动葫芦起重机产品简介

  L型电动葫芦星空体育官方账号与CD1单速电动葫芦或MD1型单速电葫芦配套设施应用,是一种有轨运作的小型吊车,适用吊重5-10吨,跨距16-30米。办公环境-20-+40℃。

  L型电动葫芦星空体育官方账号为一般主要用途起重设备,适用室外工作的固定不动跨间,装卸搬运或爬取原材料。有路面实际操作和房间内实际操作二种方法。远程服务器严禁吊装易燃易爆物品。

L型电动葫芦星空体育官方账号

  L型电动葫芦起重机结构图

L型电动葫芦起重机结构图

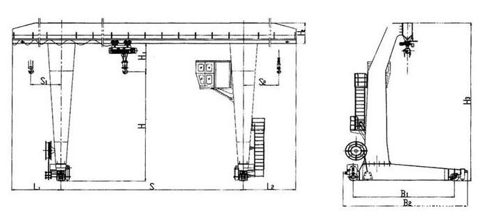
  L型电动葫芦起重机基本技术参数图

L型电动葫芦起重机基本技术参数图


文章聚合页面: L型 星空体育官方账号

联系我们

CONTACT US

联系人:徐经理

手机:13782575673

电话:0373-8611375

邮箱:hnzyaqqz@126.com

官网:www.xlhydra.com

地址:河南长垣起重工业园区华豫大道中段

Baidu
map