您好,欢迎进入xk星空体育直播平台官方网站!

与时俱进,诚赢客户

龙门吊、提梁机、星空体育官方账号生产厂家

服务电话:13782575673

桥式起重机

您现在所在位置:首页>>星空游戏官网入口手机版>>xk星空体育官方网站>>QS型三用桥式起重机

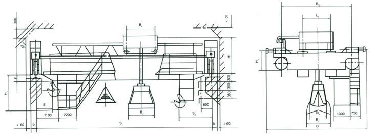
QS型三用桥式起重机

本文链接:xk星空体育   发布时间:2022-01-20 14:21:26  点击量:5152

  xk星空体育的基本上结构与吊钩桥式起重机同样,含有钻胶的起重电磁铁和电动式抓斗起重机。依据必须可以用起重吊钩吊装总体物件,还可以在起重吊钩上挂一个电动式抓斗起重机装卸搬运散粒原材料,还能够把抓斗起重机卸掉挂上起重电磁铁吊装轻金属。这类起重设备适用吊装类型常常转变的货品,且生产效率规定不高的场所。工作规范为主级或A6-A7。

QS型三用桥式起重机

  QS型三用桥式起重机结构图

QS型三用桥式起重机结构图

QS型三用桥式起重机参数图

QS型三用桥式起重机参数图

文章聚合页面: 桥式起重机

联系我们

CONTACT US

联系人:徐经理

手机:13782575673

电话:0373-8611375

邮箱:hnzyaqqz@126.com

官网:www.xlhydra.com

地址:河南长垣起重工业园区华豫大道中段

Baidu
map