您好,欢迎进入xk星空体育直播平台官方网站!

与时俱进,诚赢客户

龙门吊、提梁机、星空体育官方账号生产厂家

服务电话:13782575673

桥式起重机

您现在所在位置:首页>>星空游戏官网入口手机版>>xk星空体育官方网站>>QC型电磁桥式起重机

QC型电磁桥式起重机

本文链接://www.xlhydra.com/qsqzj/1263.html   发布时间:2022-01-17 11:39:10  点击量:4398

  QC型电磁桥式起重机产品简介:

  QC型电磁桥式起重机由箱形电缆桥架、大货车运作组织、小轿车、电磁铁吸盘机器设备、电器设备五部份构成,所有结构均在控制房间内控制。当室外应用需带防水防雨机器设备。

  QC型电磁桥式起重机含有可装卸搬运的电磁铁吸盘,尤其适用冶金工厂在房间内或室外的固定不动跨距间较繁杂的装卸搬运及运送具备磁力的轻金属产品与原材料。在铸造厂、仓库也常见来运送钢料、铁销等原材料。

QC型电磁桥式起重机

  QC型电磁桥式起重机采用时,请标明办公环境的*大、*低温和开关电源等。可依据客户规定开展变更设计方案。

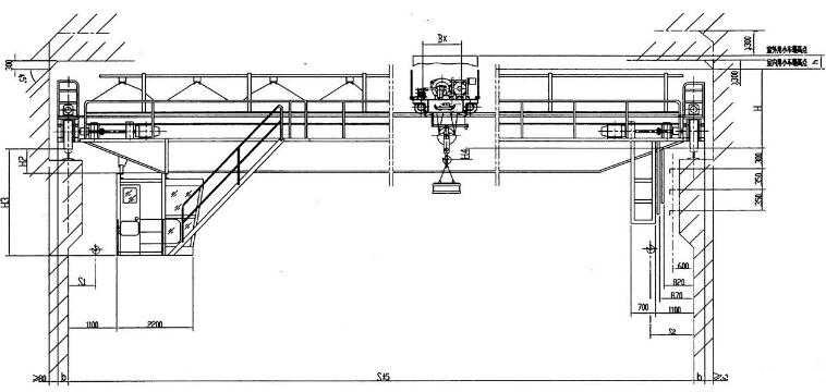
  QC型电磁桥式起重机构造示意图

QC型电磁桥式起重机构造示意图


文章聚合页面: 桥式起重机

联系我们

CONTACT US

联系人:徐经理

手机:13782575673

电话:0373-8611375

邮箱:hnzyaqqz@126.com

官网:www.xlhydra.com

地址:河南长垣起重工业园区华豫大道中段

Baidu
map