您好,欢迎进入xk星空体育直播平台官方网站!

与时俱进,诚赢客户

龙门吊、提梁机、星空体育官方账号生产厂家

服务电话:13782575673

桥式起重机

您现在所在位置:首页>>星空游戏官网入口手机版>>xk星空体育官方网站>>QN型双用桥式起重机

QN型双用桥式起重机

本文链接://www.xlhydra.com/qsqzj/1351.html   发布时间:2022-01-21 09:19:22  点击量:5382

  QN型双用桥式起重机产品简介

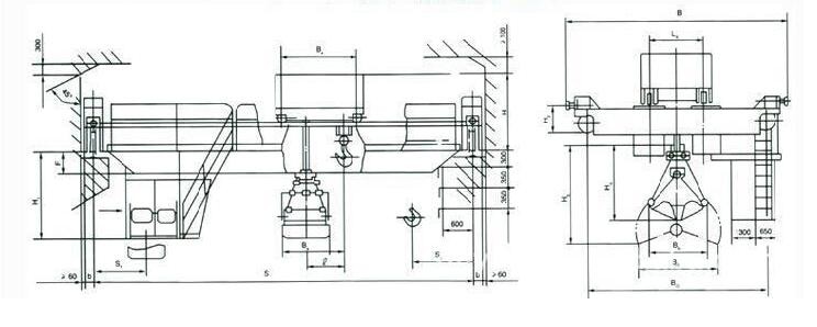
  QN型双用桥式起重机就是指可以用起重吊钩做为吊装工具,也可应用抓斗起重机做为吊装工具的双梁桥式起重设备。吊重5~16t;跨距10.5m~50m;工作中等级A6~A8;广泛运用于起重吊装运送、冶金工业、电力工程、港口物流等各个领域,尤其适用铸造行业投料工作的工作状况。

QN型双用桥式起重机

  QN型双用桥式起重机产品简介结构图

QN型双用桥式起重机产品简介结构图

  QN型双用桥式起重机产品简介参数图

QN型双用桥式起重机产品简介参数图

文章聚合页面: QN型 桥式起重机 QN型双用桥式起重机

联系我们

CONTACT US

联系人:徐经理

手机:13782575673

电话:0373-8611375

邮箱:hnzyaqqz@126.com

官网:www.xlhydra.com

地址:河南长垣起重工业园区华豫大道中段

Baidu
map